VERKAUFT

94034 Passau
Passau-Grubweg: Kleines Reihenmittelhaus – ideal für Ehepaar
Objekt-Nr.: H10391
| Nutzungsart: |
Wohnen |
|
| Objektart: |
Haus |
|
| Detail: |
Reihenmittel |
|
| Vermarktungsart: |
Kauf |
|
| Verfügbar ab: |
sofort |
|
| Kaufpreis: |
- - - |
|
| Wohnfläche: |
ca. 79,00 m² |
|
| Nutzfläche: |
ca. 30,00 m² |
|
| Grundstücksfläche: |
ca. 188,00 m² |
|
| Zimmer: |
3 |
|
| Provision: |
3,57 % inkl. gesetzl. MwSt. |
|
| Baujahr: |
1960 |
|
| Zustand: |
Gepflegt |
|
| Zustand Ausstattung: |
Gepflegt |
|
| Energietyp: |
Bedarfsausweis |
|
| Kennwert: |
240,70 kWh/(m²*a) |
|
| Energieeffizienzklasse: |
G |
|
| Befeuerungsart: |
Elektro |
Städtische Stromversorgung |
|
Städtische Wasserversorgung |
|
|
| Küche: |
EBK |
|
|
| Sanitär: |
Dusche |
|
|
| Balkon/Terrasse: |
Garten |
Terrasse |
|
| TV: |
Kabelanschluss |
|
|
| Kommunikation: |
DSL |
|
|
| Sonstiges/Wohnen: |
Gartenmitbenutzung |
|
|
| Möbliert: |
teilweise möbliert |
|
|
| Fenster: |
Kunststofffenster |
|
|
| Böden: |
Fliesen |
Laminat |
|
| Derzeitige Nutzung: |
frei |
|
Lage
Passau-Grubweg dort recht zentral. Alles zur Deckung des täglichen Bedarfs in unmittelbarer Nähe, sowie Schule/Kindergarten, Einkaufsmöglichkeiten, Bus usw. zu Fuß zu erreichen. Beschreibung
Zum Verkauf steht ein kleines Reihenmittelhaus in Passau Stadtteil Grubweg dort in recht zentraler Lage mit schöner Aussicht. Dieser zentrale Standort bietet sehr kurze Wege zu allem Wichtigen für den täglichen Bedarf. Außerdem eine ideale Verkehrsanbindung.
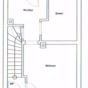
Im EG des Hauses sind die Küche/Esszimmer, das Wohnzimmer mit einer Terrasse incl. Gartenabgang, sowie die Diele untergebracht. Im OG Bad/WC (die Fliesen und Badmöbeln einschließlich Waschbecken und Armaturen wurden im Jahr 2022 erneuert), sowie zwei Schlafräume. Der Dachraum im Spitzboden ist ausgebaut. Das Haus ist voll unterkellert. Der Keller bietet einen Ausgang ins Freie.
ECKDATEN IM ÜBERBLICK:
Objektart: Reihenmittelhaus
Baujahr: 1960
Wohnfläche: ca. 79 m²
Nutzfläche: ca. 30 m²
Etagen: EG, OG, DG
Zimmer gesamt: 3
davon Schlafzimmer: 2
Küchen: 1
Badezimmer: 1
Heizungsart: Elektronachtspeicher
Endenergiebedarf: 240,7 kWh(m²a)
Effizienzklasse: G
Balkon/Terrasse: Terrasse im EG mit Abgangstreppe in den Garten
Grundstück: 188 m² Ausstattung
- Mauerwerk: massiv
- Dach: Satteldach
- Fenster: Kunststofffenster mit Isolierverglasung. Die beiden Dachfenster wurden im Jahr 2024 neu eingebaut
- Heizung: Elektronachtspeicherheizung, Warmwasserbereitung über Elektroboiler
- Geschosstreppe: ins OG/DG: Holztreppe, in den Keller: Betontreppe
Raumaufteilung:
Erdgeschoss:
Wohnzimmer, Küche, Esszimmer, Terrasse mit Gartenabgang, Diele.
Obergeschoss:
Schlafzimmer, Kinderzimmer, Bad/WC, Diele
Dachgeschoss:
Ausgebauter Dachraum
Kellergeschoss:
Zwei Kellerräume, Waschküche
Grundstück:
188 m². Es gibt einen kleinen Vorgarten und den Hauptgarten, welcher von der Terrasse und vom Keller aus begehbar ist. Es gibt ferner einen Gemeinschaftsweg, bei welchem man einen Anteil mit kauft, so kann man auch von außen ans Grundstück heran.
Garage/Stellplatz:
Die Immobilie verfügt weder über eine Garage noch über einen KFZ-Stellplatz. Sonstiges
Die Immobilie ist bezugsfrei.
Energiekennwerte:
Art des vorliegenden Energieausweises: Bedarfsausweis
Endenergiebedarf:240,7 kWh/(m²a)
Energieträger: Strom
Baujahr Wohngebäude: 1960
Baujahr Wärmeerzeuger: 1978
Energieeffizienzklasse: G
Maklercourtage: 3,57 % incl. MwSt. Käufermaklercourtage.
Alle Angaben sind ohne Gewähr und basieren ausschließlich auf Informationen, die uns von unserem Auftraggeber übermittelt wurden. Wir übernehmen keine Gewähr für die Vollständigkeit, Richtigkeit und Aktualität dieser Angaben.
Google Maps - Kartenmaterial